お問い合わせ候補一覧
- 住所
- 青森県上北郡おいらせ町中下田
- アクセス
- 青い森鉄道 下田駅
- 価格 1,790.0万円
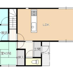
- 間取り 4LDK
- 土地面積: 198.13m 2 ( 59.93坪 )
- 建物面積: 100.44m 2 ( 30.38坪 )
- 完成年月: 2019年05月
お問い合わせフォーム
下記のフォームに必要項目、お問い合わせ内容を入力後、プライバシーポリシーをご確認ご同意のうえ送信ボタンを押して下さい。






